
Centre de radiothérapie et d'oncologie du Pays Basque.
Centre de radiothérapie et d'oncologie du Pays Basque.
Centre de radiothérapie et d'oncologie du Pays Basque.
Centre de radiothérapie et d'oncologie du Pays Basque.































































Informations
Maîtrise d’ouvrage
COPB
Date
Livré en 2023
Localisation
Avenue du 14 Avril 1814, Bayonne
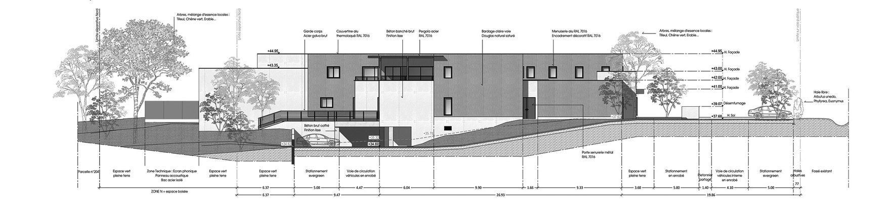
Le Centre d’Oncologie du Pays Basque installé allée Paulmy à Bayonne se trouvant dans l’impossibilité de réaliser une extension, il a été décidé de construire un nouveau bâtiment sur les hauts de Bayonne. A l’issu d’un concours, l’agence a été retenue pour le construire. Il prend place sur un terrain très bien desservi, en lisière d’un espace naturel constitué d’une forêt protégée.
Après analyse du programme (construction de six bunkers, un scanner, des locaux techniques associés, un pôle consultation et un pôle administratif) nous avons proposé un bâtiment ouvert, très fortement éclairé naturellement et en accord avec l’environnement. Le confort du patient et du personnel a été posé en base de conception.
Au final, c’est un bâtiment constitué de cinq patios intérieurs, pour la plupart accessibles aux patients et tournés vers la forêt qui voit le jour. L’aspect environnemental a été l’une des clés de la conception, permettant la construction d’un centre de radiothérapie qui malgré ses 6 Bunkers, affiche l’étiquette E3/C1, Bepos et l’obtention du label OSMOZ.
© Sébastien Labruquere Photographies
Nouveau centre de radiothérapie 6 bunkers
Surface plancher : 3 600 m²
Montant des travaux : 13 500 000€
Mission : complète
Informations
Maîtrise d’ouvrage
COPB
Date
Livré en 2023
Localisation
Avenue du 14 Avril 1814, Bayonne
Le Centre d’Oncologie du Pays Basque installé allée Paulmy à Bayonne se trouvant dans l’impossibilité de réaliser une extension, il a été décidé de construire un nouveau bâtiment sur les hauts de Bayonne. A l’issu d’un concours, l’agence a été retenue pour le construire. Il prend place sur un terrain très bien desservi, en lisière d’un espace naturel constitué d’une forêt protégée.
Après analyse du programme (construction de six bunkers, un scanner, des locaux techniques associés, un pôle consultation et un pôle administratif) nous avons proposé un bâtiment ouvert, très fortement éclairé naturellement et en accord avec l’environnement. Le confort du patient et du personnel a été posé en base de conception.
Au final, c’est un bâtiment constitué de cinq patios intérieurs, pour la plupart accessibles aux patients et tournés vers la forêt qui voit le jour. L’aspect environnemental a été l’une des clés de la conception, permettant la construction d’un centre de radiothérapie qui malgré ses 6 Bunkers, affiche l’étiquette E3/C1, Bepos et l’obtention du label OSMOZ.
© Sébastien Labruquere Photographies
Nouveau centre de radiothérapie 6 bunkers
Surface plancher : 3 600 m²
Montant des travaux : 13 500 000€
Mission : complète
© 2025 TAM Architecture. Tous droits réservés.
© 2025 TAM Architecture. Tous droits réservés.
© 2025 TAM Architecture. Tous droits réservés.
© 2025 TAM Architecture. Tous droits réservés.