
Sainte-Marie des Ursulines.
Sainte-Marie des Ursulines.
Sainte-Marie des Ursulines.
Sainte-Marie des Ursulines.




































Informations
Maîtrise d’ouvrage
OGEC Sainte-Marie des Ursulines
Date
Livré en 2017
Localisation
34 avenue de la colonne Toulouse
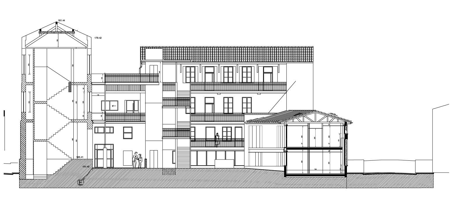
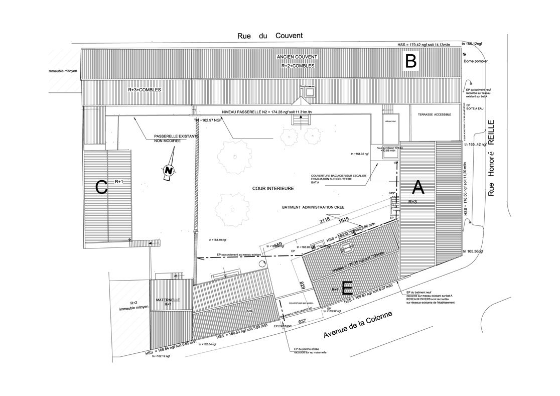
Le collège des Ursulines nécessitait une rénovation de fonctions multiples pour accueillir les élèves dans de bonnes conditions. Rénovation et création de salles de cours, création du réfectoire, création du bâtiment administratif, d’un préau, rénovation des sanitaires et restructuration des circulations intérieures et extérieures aussi bien verticalement que horizontalement.
Restructuration et aménagement du Collège sainte marie des Ursulines
Surface plancher : SO
Montant des travaux : 7 000 000€
Mission : complète
Informations
Maîtrise d’ouvrage
OGEC Sainte-Marie des Ursulines
Date
Livré en 2017
Localisation
34 avenue de la colonne Toulouse
Le collège des Ursulines nécessitait une rénovation de fonctions multiples pour accueillir les élèves dans de bonnes conditions. Rénovation et création de salles de cours, création du réfectoire, création du bâtiment administratif, d’un préau, rénovation des sanitaires et restructuration des circulations intérieures et extérieures aussi bien verticalement que horizontalement.
Restructuration et aménagement du Collège sainte marie des Ursulines
Surface plancher : SO
Montant des travaux : 7 000 000€
Mission : complète
© 2025 TAM Architecture. Tous droits réservés.
© 2025 TAM Architecture. Tous droits réservés.
© 2025 TAM Architecture. Tous droits réservés.
© 2025 TAM Architecture. Tous droits réservés.