
Bureaux BAB & Logements.
Bureaux BAB & Logements.
Bureaux BAB & Logements.
Bureaux BAB & Logements.













































Informations
Maîtrise d’ouvrage
Privé
Date
Livré en 2000
Localisation
Quartier Arnaud Bernard Toulouse
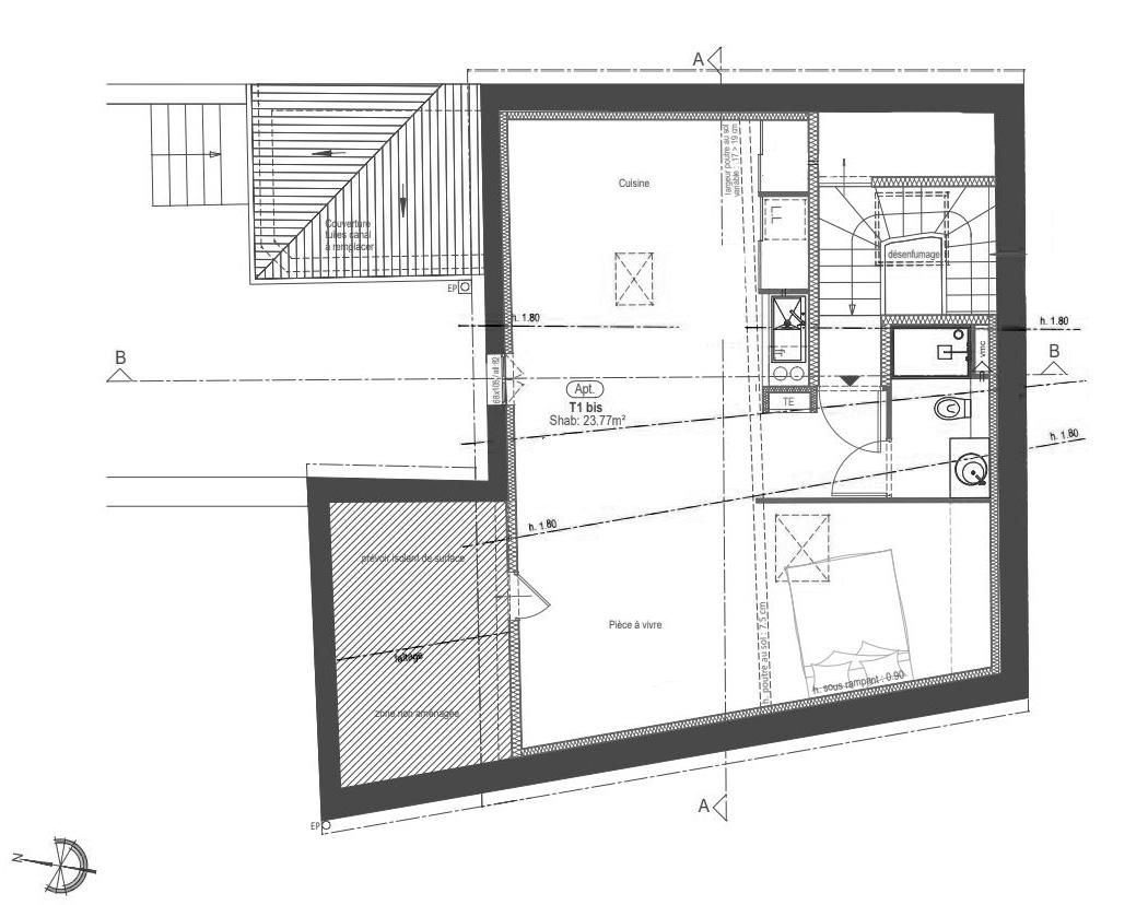
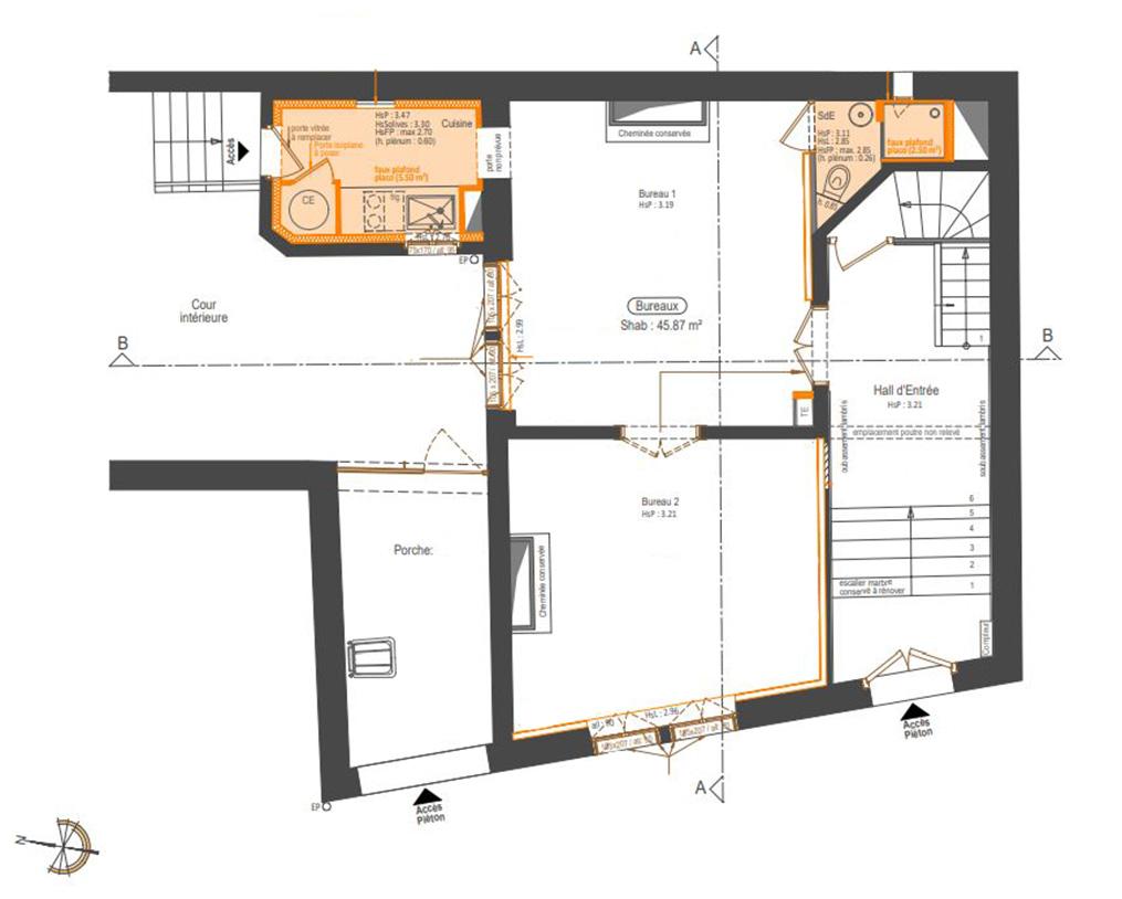
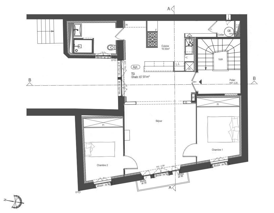
Le projet a pour objet la rénovation d’un immeuble d’habitation de style toulousain. Trois logements existants sur rue de Castelbou ont été rénovés en conservant les éléments de décors et de façades propres au style de la construction pour en faire du logement, mais également les bureaux de l‘Agence Bienvenue à Bord.
L’immeuble est situé à proximité de la place Arnaud Bernard et perpendiculaire au boulevard Lascrosses. Il est inclus dans le périmètre du Site patrimonial remarquable de Toulouse.
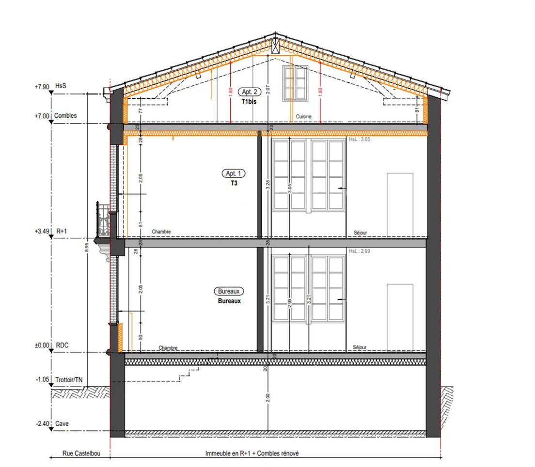
Les pièces ont été rénovées dans le style actuel, moulures de plafonds, rosaces de lustres, parquet en bois… De plus, les parties communes en RDC ont été restaurées : marbres rénovés, reprise des soubassements en lambris et rénovation des moulures d’habillage de poutre en staff. L’escalier en bois intérieur est également maintenu et rénové. Afin de répondre aux normes de confort actuel, les murs extérieurs ont été isolés et les menuiseries bois existantes ont été remplacées par des menuiseries bois à l’identique munis de double vitrage.
Pour finir, la rénovation extérieure complète de l’immeuble sur rue se fera par la réutilisation des matériaux originels et la mise en œuvre de la palette de teintes de l’architecture toulousaine.
Rénovation d'un immeuble
Surface plancher : 242 m²
Montant des travaux :
Mission : complète
Informations
Maîtrise d’ouvrage
Privé
Date
Livré en 2000
Localisation
Quartier Arnaud Bernard Toulouse
Le projet a pour objet la rénovation d’un immeuble d’habitation de style toulousain. Trois logements existants sur rue de Castelbou ont été rénovés en conservant les éléments de décors et de façades propres au style de la construction pour en faire du logement, mais également les bureaux de l‘Agence Bienvenue à Bord.
L’immeuble est situé à proximité de la place Arnaud Bernard et perpendiculaire au boulevard Lascrosses. Il est inclus dans le périmètre du Site patrimonial remarquable de Toulouse.
Les pièces ont été rénovées dans le style actuel, moulures de plafonds, rosaces de lustres, parquet en bois… De plus, les parties communes en RDC ont été restaurées : marbres rénovés, reprise des soubassements en lambris et rénovation des moulures d’habillage de poutre en staff. L’escalier en bois intérieur est également maintenu et rénové. Afin de répondre aux normes de confort actuel, les murs extérieurs ont été isolés et les menuiseries bois existantes ont été remplacées par des menuiseries bois à l’identique munis de double vitrage.
Pour finir, la rénovation extérieure complète de l’immeuble sur rue se fera par la réutilisation des matériaux originels et la mise en œuvre de la palette de teintes de l’architecture toulousaine.
Rénovation d'un immeuble
Surface plancher : 242 m²
Montant des travaux :
Mission : complète
© 2025 TAM Architecture. Tous droits réservés.
© 2025 TAM Architecture. Tous droits réservés.
© 2025 TAM Architecture. Tous droits réservés.
© 2025 TAM Architecture. Tous droits réservés.