
Chiva - Scanner.
Chiva - Scanner.
Chiva - Scanner.
Chiva - Scanner.












Informations
Maîtrise d’ouvrage
Centre Hospitalier Intercommunal des Vallées de l’Ariège (CHIVA)
Date
Chantier en cours depuis juillet 2024 - Fin de chantier février 2025
Localisation
Chemin de Barrau 09000 Saint-Jean-de-Verges
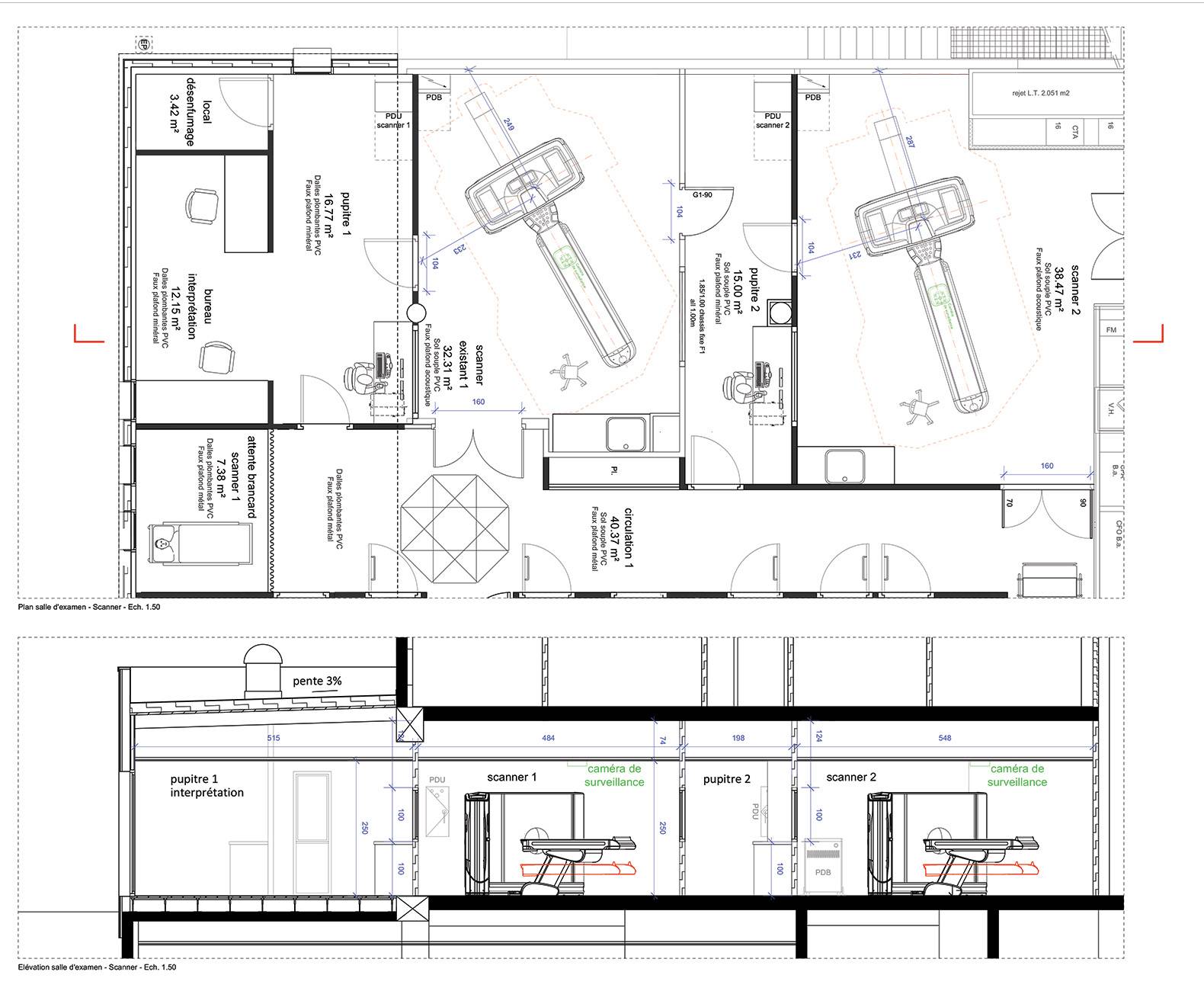
Implantation d’un deuxième scanner dans le bâtiment existant (abritant le premier scanner en maintien de son activité).
Restructuration de l’accueil patients et extension pour accueillir les locaux associés du deuxième scanner.
Surface de plancher : 530 m²
Montant des travaux : 1 200 000 € HT
Mission : Complète
Intervention en site occupé en maintien d’activité.
Informations
Maîtrise d’ouvrage
Centre Hospitalier Intercommunal des Vallées de l’Ariège (CHIVA)
Date
Chantier en cours depuis juillet 2024 - Fin de chantier février 2025
Localisation
Chemin de Barrau 09000 Saint-Jean-de-Verges
Implantation d’un deuxième scanner dans le bâtiment existant (abritant le premier scanner en maintien de son activité).
Restructuration de l’accueil patients et extension pour accueillir les locaux associés du deuxième scanner.
Surface de plancher : 530 m²
Montant des travaux : 1 200 000 € HT
Mission : Complète
Intervention en site occupé en maintien d’activité.
© 2025 TAM Architecture. Tous droits réservés.
© 2025 TAM Architecture. Tous droits réservés.
© 2025 TAM Architecture. Tous droits réservés.
© 2025 TAM Architecture. Tous droits réservés.