
Clinique de l'Union - Scanner.
Clinique de l'Union - Scanner.
Clinique de l'Union - Scanner.
Clinique de l'Union - Scanner.












Informations
Maîtrise d’ouvrage
SCM RX TOULOUSE
Date
Chantier en cours depuis janvier 2024 - Fin de chantier février 2025
Localisation
Service de Radiologie, Boulevard de Ratalens, 31240 Saint-Jean
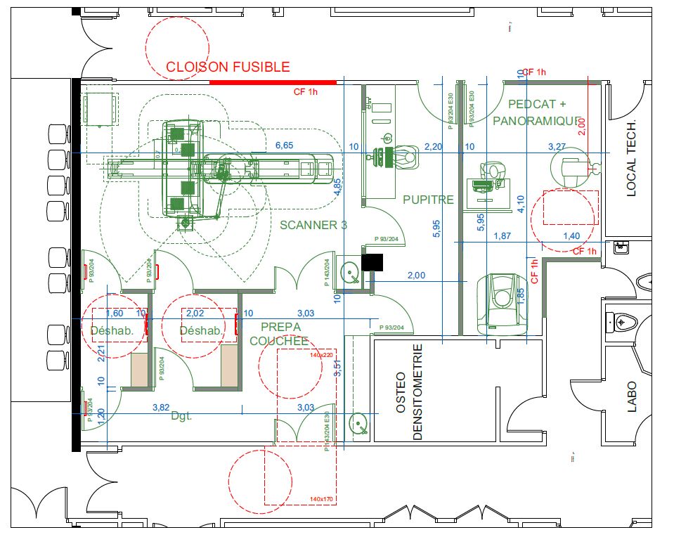
Implantation d’un troisieme scanner dans le bâtiment existant.
Surface de plancher : 135 m²
Montant des travaux : 400 000 € HT
Mission : Complète
Intervention en site occupé en maintien d’activité.
Informations
Maîtrise d’ouvrage
SCM RX TOULOUSE
Date
Chantier en cours depuis janvier 2024 - Fin de chantier février 2025
Localisation
Service de Radiologie, Boulevard de Ratalens, 31240 Saint-Jean
Implantation d’un troisieme scanner dans le bâtiment existant.
Surface de plancher : 135 m²
Montant des travaux : 400 000 € HT
Mission : Complète
Intervention en site occupé en maintien d’activité.
© 2025 TAM Architecture. Tous droits réservés.
© 2025 TAM Architecture. Tous droits réservés.
© 2025 TAM Architecture. Tous droits réservés.
© 2025 TAM Architecture. Tous droits réservés.